

在现代城市化浪潮的冲击下,乡村没落成为了一个不可回避的现实问题。米思建筑受南京高淳蒋山渔村的委托,以满足原住民对现代功能和文化生活的需求为最基本目标,制定了乡村更新计划。希望从乡村本源的“人”的角度出发,用片段式的改造和建设来改变这个固城湖畔的小渔村。
蒋山渔村更新计划的第一阶段由两个部分组成,分别是对空置老宅的改造和乡村公共设施的建设。
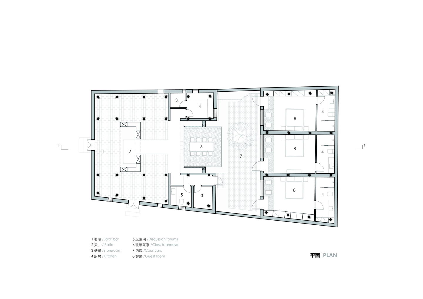
老宅改造是更新计划的重点所在。设计最大限度的保留了这栋村中少有的古老宅院的外在形态,希望能强调地域特征和文化传承的重要性。同时对建筑内部进行颠覆性的功能置换和空间重构。一个包裹着天井的书架和一个面向庭院的玻璃茶亭植入其中,它们不但成为了空间活动的中心,更是打破了室内外的界限,为原本昏暗老宅引入了阳光和自然,使其成为了村庄邻里交流和文化交融的新场所。







乡村公共卫生设施建设则是为了满足村民在平常生活和工作中就近如厕的需求。两个公厕分别位于村口和村中小树林畔。建筑以最基本的形态和建筑方式,保证了在较少的资金和地域化的施工条件中依然能呈现出简洁的现代审美。并通过建筑形体错位的方式形成“缝隙”,让建筑在仅有少量设备辅助情况下依然享有保有良好的通风和采光效果。
在丁酉年末,更新计划的第一阶段完工,我们欣喜地看到建造的这些“小玩意”得到了村民们的认可,也潜移默化地影响了村民的生活。大家开始喜欢午后三两结伴来书舍里读书闲谈,并开始对传统老宅或新建筑的使用及形态和功能有了新的看法。蒋山实践的出发点不同于现今的民宿式乡建热潮,它是源于村民最质朴的生活和文化需求,期于从根本处影响乡村的基因。在某种程度上,设计对建筑的社会意义的思考超越其形式,而对于乡村复兴的期望则在设计的实践中开始起步。



